by Mr. Laverne Dalgleish
The short answer is no. The results you get from ASTM E283 will be different than from ASTM E2178. They are not the same test method. ASTM E283 is simply the procedure to determine air leakage rate across a specimen while ASTM E2178 is to determine the air leakage rate across a building material. That may seem to be the same thing, but ASTM E283 was developed to determine the air leakage rate through exterior windows, curtain walls, and doors. In the standard, it defines the specimen as being full size, the height of full story building or the height of the unit, whichever is greater. It goes on to require the specimen to consist of the entire assembled unit, etc. The test method gets into how you calibrate the test apparatus, what the test conditions need to be and the procedure for testing. Finally, it provides requirements for calibration and outlines what is require for the report of the test. The summary of ASTM E283 in clause 4, talks about taking one side of a specimen, sealing it against a chamber, then supplying and measuring the air flow rate to maintain a set pressure difference. ASTM E283 provides information on how to calibrate the test apparatus and how to calculate the results the test. It works for windows, walls and doors as the specimens are all constructed units. There is no specimen preparation required so the test method can focus on how to conduct the actual testing of a single unit. There are no required pressure differential requirements in ASTM E283, the proponent decides on whatever they want.

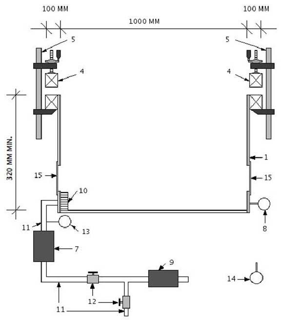
ASTM E2178 air leakage rate of building materials test being conducted
If no other information is provided, ASTM E283 cannot be used for comparing one air barrier material to another. To be able to compare materials, the specimens need to be the same and the procedure for testing and reporting needs to be the same. The air barrier industry developed ASTM E2178 specifically to test the air leakage rate of building materials to determine what materials may be considered an air barrier material. This standard requires that five (5) specimens are used to determine the air leakage rate and that these specimens are a minimum of one (1) meter by one (1) meter. This is an important requirement as we have learned that no material is truly homogeneous. The minimum of five specimens helps to determine the true air leakage rate of the material. We are also measuring air leakage rates that are very low in a lot of materials and if the specimen size is small the results are not accurate.
The test chamber to be used is fully detailed in ASTM E2178 and includes the length, width and height whereas in ASTM E283 the requirements for the test chamber are very general revolving around making the chamber airtight. There are no detailed requirements for Flow Measuring Devices (Air Flow Metering System in ASTM E283) in ASTM E283 whereas you have very specific requirements in ASTM E 2178. I have seen many laboratories who have not obtained the proper flow measuring device (normally a mass flow meter) or have construct a completely sealed chamber and have reported an air flow rate of 0.00 L/s∙m². To me this means they need to upgrade their chamber and their air flow measuring equipment.
The specimen preparation is detailed out in ASTM E2178 for size, how to place the specimen on the test chamber, how to seal it to the chamber, how to determine the extraneous air leakage rate, etc. With ASTM E283, it just talks about the specimen being full size, etc. The specimen size is fully up to the entity asking for the test to be conducted which could be 25 mm by 25 mm.
The ASTM E2178 test procedure requires six test pressures to be used on each specimen. They are 25, 50, 75, 100, 150 and 300 pascals. ASTM E2178 requires that the results are to be reported at 75 Pa. With ASTM E283, the entity asking for the test to be conducted determines the pressure difference for the test and only a single pressure difference is required. ASTM E2178 requires that the pressure testing is conducted in accordance with ASTM E283. The final value for each specimen is measured after the material has been subjected to the six pressure differences, with 300 pascals being the highest pressure difference to determine whether the high pressure difference has caused the air leakage rate of the material to increase.
The calculation clause in ASTM E2178 requires that an error analysis be performed, this is not required in ASTM E283.
The reporting clause of ASTM E2178 requires that the flow rate equation be established by fitting the data, and errors estimated. The ASTM E2178 provides Annex A1 as a recommended procedure for doing this. ASTM E283 does not require this. ASTM E2178 requires a regression line based on the air leakage data to have a r² < 0.99 or an explanation given. ASTM E283 does not require this.
Table 1 – Comparison of the two standards
| Comparison of ASTM E2178 and ASTM E283 | ||
| ASTM E2178 | ASTM E283 | |
| Specimens required | five | one |
| Chamber requirements | detailed | simply airtight |
| Flow measuring device requirements | specific | none |
| Specimen preparation | very detailed | none |
| Specimen sealing to chamber | very detailed | none |
| Procedure for determining extraneous air leakage | detailed | none |
| Number of pressure differences for the test | six | one |
| Specific pressure differences | yes | chosen by entity |
| Requirement to test at reporting pressure after subjecting the specimen to all loads | yes | no |
| Error analysis required | yes | no |
| Regression line greater than r² < 0.99 required | yes | no |
Summary
ASTM E283 cannot be a substitute for ASTM E2178. You cannot use results from a ASTM E283 test to compare the air leakage rate of one air barrier material against another air barrier material as the specimens may not be the same. If you wanted to use ASTM E283 tests for comparison, you would have to ensure that all of the requirements of ASTM E2178 have been met. If they have, then you have test results from a ASTM E2178 test. If they have not been met, then the results cannot be compared to test results from ASTM E2178.
Used with permission. Source: https://www.airbarrier.org
